產品知識
公司動態
- 2025年11月20-22日 本地“...
- 上海到底有誰在啊?10月28-3...
- 漢達參展日記之武漢篇:見證...
- 來嘍來嘍,10月24-26日平湖...
- 中秋遇國慶,家國兩團圓丨go...
- 三八出逃計劃:野外撒歡,燃燒...
聯系我們
浙江漢達機械有限公司
電話:0578-3555444 3152944
傳真:0578-3152335
產品知識
多頭鉆床都用哪些鉆桿,來幫助鉆頭實現鉆孔功能
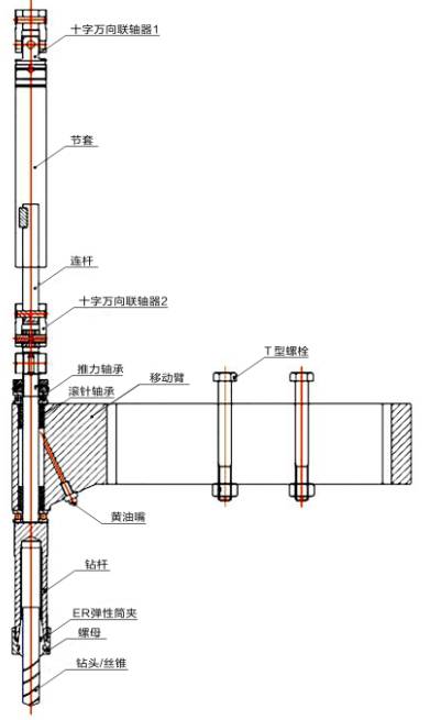
鉆床在鉆孔零件時,孔距常不同,于是開發了萬向節組件來移動鉆頭位置,加工時只需調整萬向節組件中的移動臂來對準鉆孔位置,最終多軸鉆床實現對不同孔距的零件鉆孔工序,更加靈活,適用性強。

ER萬向節組件▲

機頭T型槽及移動臂▲
萬向節組件由十字萬向聯軸器1、節套、花鍵連桿、十字萬向聯軸器2、移動臂、鉆桿等組成。十字萬向聯軸器1與分動齒輪連接,組件通過移動臂上的2個T型螺栓固定在機頭的2到T型槽上。通過調節移動臂位置,實現鉆桿位置的調節,滿足不同孔距的零件的加工。更多鉆床資料,上www.darenjc.com

十字聯軸器▲
鉆桿是用于連接鉆床與鉆頭的重要工具,具有卡具的功能和量具的精度,直接關系到鉆頭是否得到正確的使用,鉆削是否達到理想效果的關鍵因素所在。常用鉆桿有ER鉆桿和莫氏鉆桿。

ER鉆桿和莫氏鉆桿▲
ER鉆桿按所裝筒夾分為ER8,ER11,ER16,ER20,ER25,ER32,ER40和ER50這幾種規格。其夾持范圍如下:

ER鉆桿要與ER筒夾配合使用,由螺帽將筒夾向內壓入和刀柄內孔錐度配合的夾頭收縮完成夾緊過程,夾持力高,精度好。
莫氏鉆桿內孔根據莫氏錐度制作,莫氏錐度是一個錐度的國際標準,為19世紀美國機械師莫氏(Stephen A. Morse)為了解決麻花鉆的夾持問題(莫氏同時也是世界最早商業化麻花鉆頭(1864年)的發明者)而發明。由于錐度很小,利用摩擦力的原理,可以傳遞一定的扭矩,又因為是錐度配合,所以可以方便的拆卸。在同一錐度的一定范圍內,工件可以自由的拆裝,同時在工作時又不會影響到使用效果,如使用中需要拆卸鉆頭磨削,拆卸后重新裝上不會影響鉆頭的中心位置。莫氏鉆桿根據內孔錐度分為莫氏1號、莫氏2號、莫氏3號、莫氏4號、莫氏5號、莫氏6號等。其夾持范圍如下:
考慮到有些情況要保證鉆頭高度的一致性,鉆桿在一定高度范圍內可以調整,ER鉆桿和莫氏鉆桿還有可調式。只需松開鉆桿下方的鎖緊螺母,擰松鉆桿上的小螺釘,就可以調節鉆頭高度。調節完畢,擰緊小螺釘和鎖緊螺母即可。

達人多軸鉆床鉆桿的選用▲

多軸鉆床上的鉆桿▲
更多鉆床資料,上www.darenjc.com
客戶評論
發表評論